| VERWALTUNG | SCHULE | KULTUR | KIRCHE | WOHNEN | KITA | STÄDTEBAU | WETTBEWERB | STUDIEN |
|---|
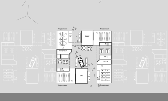
MeTeOr
Für die Professur Arbeitswissenschaft der
TU Chemnitz wurde eine innovative Forschungseinrichtung entwickelt.
Dabei wurde eine Hülle entworfen, welche Raum gibt für Prozesse im Zusammenwirken von Mensch, Technik und Organisation.














