HOME
PROFIL
REFERENZEN
KONTAKT
IMPRESSUM
VERWALTUNG
SCHULE
KULTUR
KIRCHE
WOHNEN
KITA
STÄDTEBAU
WETTBEWERB
STUDIEN
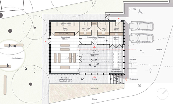
Ev.-Luth. Kirchgemeinde Rödlitz-Heinrichsort
Neubau eines Gemeindehauses
Einladungswettbewerb